랄박 포트(Lalbagh Fort, 뱅갈어로는 랄박 깰라) 또는 포트 아우랑가받(Fort Aurangabad)는 다까 남서쪽 부리공가(Buriganga) 강변에 있는 미완성 무골(Mughal) 궁전 요새이다.
건축 당시와 달리 현재는 강이 남쪽으로 이동해서 성과 꽤 떨어져 흐르고 있다.
D’Oily의 그림(1809-11)에 의하면 동서 직사각형의 요새는 절반 이상이 남서쪽의 강에 접해 있음을 보여 주고 있다.


랄박의 건설은 1678년에 무함마드 아잠 왕자의 벵골의 부 왕권에 의해 15개월 동안 하였으나, 공사를 완성하기 전에 그는 아우 랑 제브(AURANGZEB)에 의해 소환되었다. 그의 후계자 인 샤이 스타 칸(SHAISTA KHAN)은 1688년까지 다카에 머물렀지만 공사를 계속하지 않았다. 그의 딸 비비 파리(Bibi Pari)가 1684년 이곳에서 죽었는데, 이로 인해 그 요새가 불길하다고 여겼기 때문이다.


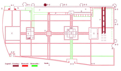
랄박 요새는 오랫동안 세 개의 건물(모스크(Mosque), 비비 파리의 무덤, 디완이-암(Diwan-i-Aam))과 두 개의 관문과 지금은 많이 훼손 된 성벽으로 이루어졌다. 그러나 방글라데시 고고학부가 최근 발굴한 결과 다른 구조물의 존재가 밝혀졌고, 그래서 요새의 전체적인 모습을 추측하는 것이 가능해졌다.


2만2천여평의 성을 이루는 지역에서 발굴을 통해 물 공급, 하수도, 옥상 정원 및 분수를 위한 정교한 배치를 갖춘 26/27 구조물의 유적이 발견되었다.
세 개의 현존하는 관문 중 남쪽 관문이 가장 인상적이다. 정면에서 볼 때 그것은 가느 다란 첨탑과 경계를 이루는 정면이 있는 3층 구조이다. 내부에서 2층 구조의 인상을 준다. 북동쪽의 관문은 훨씬 작고 단순한 구조이다. 요새가 현재 Shaista Khan Road를 넘어 동쪽으로 더 넓게 자리 잡고 있었을 것으로 본다. 북쪽 경계 벽의 중앙에 있는 세 번째 문은 일부만 남아 있다. 이를 여러 자료를 참고하여 보수공사를 하였다.


남쪽 관문에서 서쪽으로 이어지는 남쪽 요새 벽은 요새의 남서쪽 구석에 있는 거대한 요새까지 뻗어 있다. 그런 다음 요새는 북쪽으로 뻗어 있으나 정확한 경계는 현재 알수가 없다. 남쪽과 북쪽의 관문을 연결하는 동쪽의 경계벽은 현대적인 벽이며 본래는 Shaista Khan Road 너머 동쪽 지역까지 포함했을 것으로 보고 있다.

남쪽 요새의 북쪽에는 마구간, 행정 구역과 같은 다양한 기능의 건물이 배치되었으며, 서쪽 부분에는 분수와 저수지가 배치 된 아름다운 옥상 정원이 있다. 주거 부분은 서쪽 요새의 동쪽, 주로 모스크의 남서쪽에 위치했으며, 하수도의 일부 잔해가 발견되었다. 남쪽 요새는 쌍벽으로 바깥 쪽은 높이 6.10m, 두께 1.37m, 안쪽은 같은 두께로 13.72m 높이이다. 두 개는 높이가 6.10m까지 견고하며 내벽 상부에는 규칙적으로 개구부가 있다.

남쪽의 원래 요새 벽에는 일정한 간격으로 5개의 요새가 있었고, 서쪽 벽에는 2개의 요새가있었다. 7개의 요새 중 가장 큰 요새는 마구간 뒤쪽의 남쪽 정문 근처에 있으며, 이는 관문 서쪽 지역을 차지하고 있다. 성에는 지하 터널이 있다. 남쪽 요새의 5개 요새 중 중앙 요새는 단층이고 나머지는 2 층 구조이다. 중앙에는 3면에 베란다가 있는 지하 공간이 있으며 강변이나 지붕에서 접근 할 수 있게 되어 있다. 요새 남서쪽 모퉁이에 있는 2층 요새는 아마도 지붕에 물 저장탱크가 있는 Hawakhana 일 것으로 추정 된다. 이 물탱크와 요새의 모든 시설을 연결하는 두 줄의 테라코타 파이프가 발견되었다.



남부 요새와 평행 한 마구간에서 서쪽으로 향하는 지역에는 한때 분수가 있는 아름다운 옥상 정원, 화단을 표시하는 장미 및 별 모양과 집수장있었다. 그 아래의 건물은 서쪽의 행정 구역과 주거 부분을 포함했다.

요새의 중앙 지역은 동쪽의 Diwan-i-Aam과 Hammam, 서쪽의 모스크와 두 건물 사이의 Bibi Pari 무덤 등 세 건물이 한 줄로 있지만 같은 거리에 있지는 않다. 분수가 있는 수로는 동쪽에서 서쪽으로 3개의 건물을 연결하고 남쪽에서 북쪽으로 2개의 유사한 채널을 연결하고 있다. 하나는 Diwan-i-Aam과 무덤 사이의 땅 중앙을 통과하여 분수가 있는 사각형 연못으로 연결된다. 동서 수로와의 교차점에서, 다른 하나는 무덤 바닥을 통과하는데 Mughal 건축의 매우 일반적인 특징인 수로와 분수는 북부 인도 Mughal 요새와 별로 다르지 않은 형태이다. Diwan-i-Aam 앞(동쪽)과 남쪽 및 북쪽 관문 사이에 배치 된 큰 사각형 연못(71.63m 정사각형)은 성의 아름다움을 더한다. 연못 아래로 내려갈 수 있는 계단이 4곳에 설치 되어 있다.

Lalbagh Fort의 남쪽 관문 (내부보기)
서쪽에 단층의 함맘이 붙어있는 2층의 Diwan-i-Aam은 인상적인 건물이다. Hmmam 단지에는 개방형 플랫폼, 작은 주방, 오븐, 물 저장 공간, 벽돌 욕조, 화장실, 탈의실 및 추가 공간이 있다. 함맘 부분에는 물을 끓일 수있는 지하 공간과 청소부용 통로가 있다. 긴 칸막이 벽은 함맘의 서쪽 정면을 따라 남북으로 이어져 전체 요새 지역을 두 구역으로 나눕다.


중앙에 있는 건물인 비비 파리의 무덤은 요새의 남아 있는 건물 중 가장 인상적이다. 8개의 방이 중앙 정사각형 방을 둘러싸고 있으며, 비비 파리의 유골은 거짓 돔으로 덮여 있고, 팔각형 모양이며 놋쇠 판으로 싸여 있다. 중앙 방의 전체 내부 벽은 흰색 대리석으로 덮여 있고, 4개의 중앙 방에는 최대 1미터 높이의 돌이 깔려있다. 네 모퉁이 방의 벽은 아름다운 유약 꽃 타일로 둘러싸여있다. 타일은 최근 복원되었다. 원래 타일은 현재 두 개가 남아 있다. 남동쪽 모퉁이 방에는 비비 파리의 친척 인 샴 사드 베굼(Shamsad Begum)의 것으로 알려진 작은 무덤이 있다. Lalbagh Fort Mosque는 세정을 위한 세개의 물 저장소가 있는 3개의 돔형 모스크이다.





고고 학적 발굴을 통해 테라코타 머리와 명판이 발견 된 무슬림 이전 시대뿐만 아니라 술탄국의 지층이 드러났다. 따라서 무굴족이 다카를 세웠지만 무슬림이 벵골에 들어 오기 전부터 주거 지역이었음이 밝혀졌다.
Lalbagh Fort 입장료
• 현지인 관광객 : 20 TK 
• SAARC 국가 관광객 : 100 TK 
• 기타 외국인 : 200 TK 
Lalbagh Fort의 방문 시간
하절기 (4 월 ~ 9 월) 
• 화요일 ~ 토요일 : 오전 10시 ~ 오후 1시, 오후 1시 30 분 ~ 오후 6시 
• 금요일 : 오전 10시 ~ 오후 12시 30 분, 오후 2시 30 분 ~ 오후 6시 
• 일요일 : 주간 공휴일 
• 월요일 : 02.30 PM – 06.00 PM 
겨울 시즌 (10 월 – 3 월) 
• 화요일 – 토요일 : 09.00 AM – 01.00 PM, 01.30 PM – 05.00 PM 
• 금요일 : 09.00 AM – 12.30 PM, 02.00 PM – 05.00 PM 
• 일요일 : 주간 공휴일 
• 월요일 : 01.30 PM – 05.00 PM
'방글라데시 일반정보 > 역사ㅣ민족ㅣ기후ㅣ교육ㅣ사회' 카테고리의 다른 글
| 벵갈인을 파키스탄에서 멀어지게 한 것은 불평등이었다. (0) | 2021.02.20 | 
|---|---|
| 방글라데시 독립 운동이 어떻게 언어에서 시작 되었나? (1) | 2021.02.20 | 
| 오늘 12월 14일, 방글라데시 순교 한 지식인들의 날 (0) | 2020.12.14 | 
| 방갈리들은 어떻게 무슬림화 되었는가? (1) | 2020.10.05 | 
| 방글라데시 릭샤의 역사와 릭샤 예술 (0) | 2020.08.30 | 
 
									
								 
									
								 
									
								